トップページ > 移住・定住支援サイト > 2-1-037(長浜・建物)
2-1-037(長浜・建物)
印刷用ページを表示する 掲載日:2025年10月23日更新
海沿いの長浜町出海にある3DKの物件








契約形態
| 物件番号 | 2-1-037
|
||
|---|---|---|---|
| 契約形態 | 住宅(一戸建て)
|
地域名 | 長浜地域
|
売買
|
地区名 | 出海地区
|
|
| 売買価格 | 280万円
|
敷金 | |
| 賃貸価格(月額) | 礼金 | ||
物件概要
| 所在地 | 大洲市長浜町出海
|
築年数 | 不詳(昭和50年増築)
|
|---|---|---|---|
| 建物面積 | 1階 87.91
|
構造 | 木・鉄筋コンクリート造2階建て
|
| 2階 40.16
|
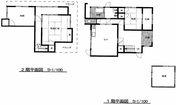
間取り | 間取り図のとおり
|
|
| 敷地(土地)面積 | 262.71
|
修繕・解体の要否 | 修繕が必要
|
| 利用状況 | 令和7年1月まで利用していた
|
利用者負担
|
設備状況
| 電気 | 引き込み済
|
ガス | プロパンガス
|
|---|---|---|---|
| 水道 | 上水道
|
下水道 | 単独処理浄化槽
|
| 風呂 | 有
灯油
|
トイレ | 汲み取り・和式
|
| 車庫・駐車場 | 有
3台分
|
田畑・菜園 | 無
|
主要施設までの距離
| 鉄道駅 | JR伊予長浜
9.8
|
公園 | 8.5
|
|---|---|---|---|
| バス停 | 長浜駅前
9.8
|
郵便局 | 0.6
|
| 市役所 | 長浜支所
8.9
|
病院 | 9.8
|
| 警察署 | 長浜交番
9.5
|
内科医院 | 9.0
|
| 保育所 | 長浜こども園
9.1
|
スーパー | 8.9
|
| 小学校 | 長浜
9.3
|
コンビニ | 10.3
|
| 中学校 | 長浜
10.0
|
ホームセンター | 11.9
|
特記事項
<取り扱い業者:(株)矢野金物店 Tel:0893-57-7166>
![[[site_name]]](/img/iju/logo.png)

